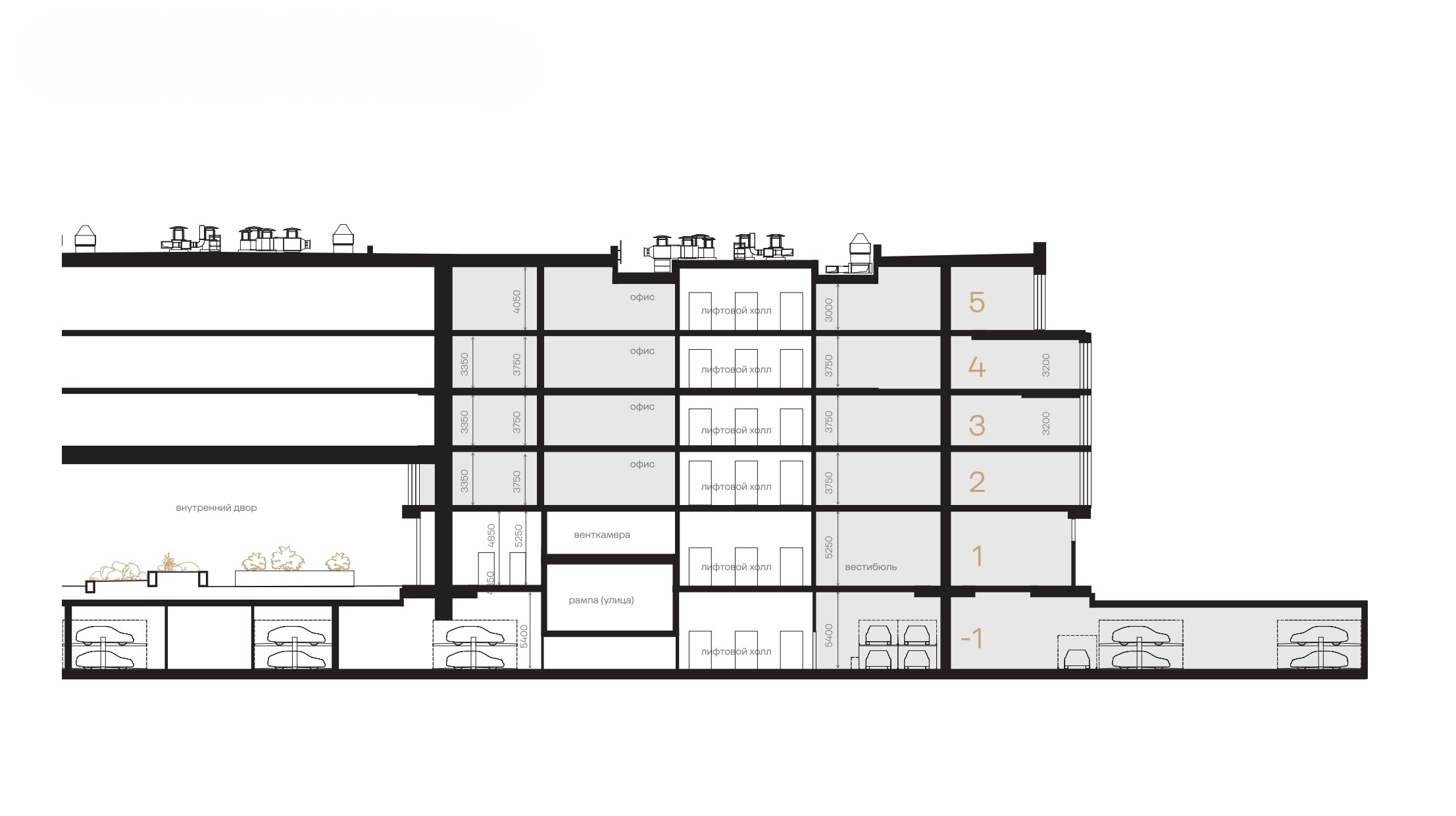
высота потолков лобби
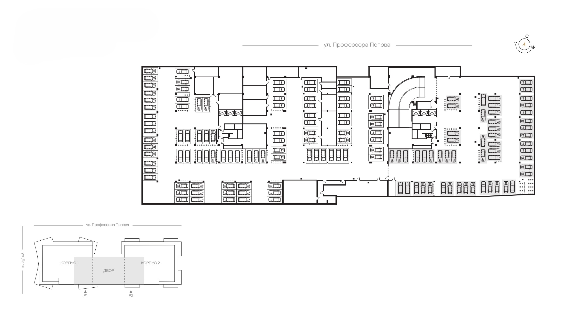
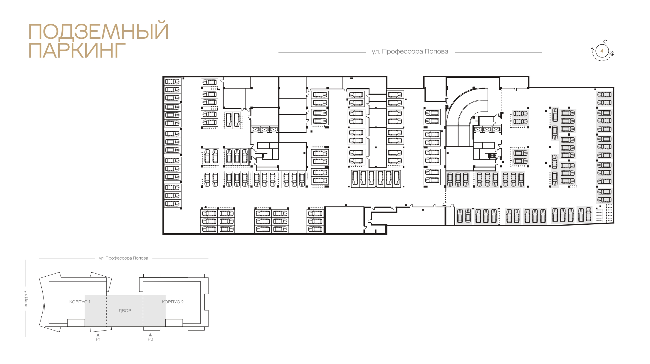
в подземном паркинге
высота потолков
срок сдачи
лифта
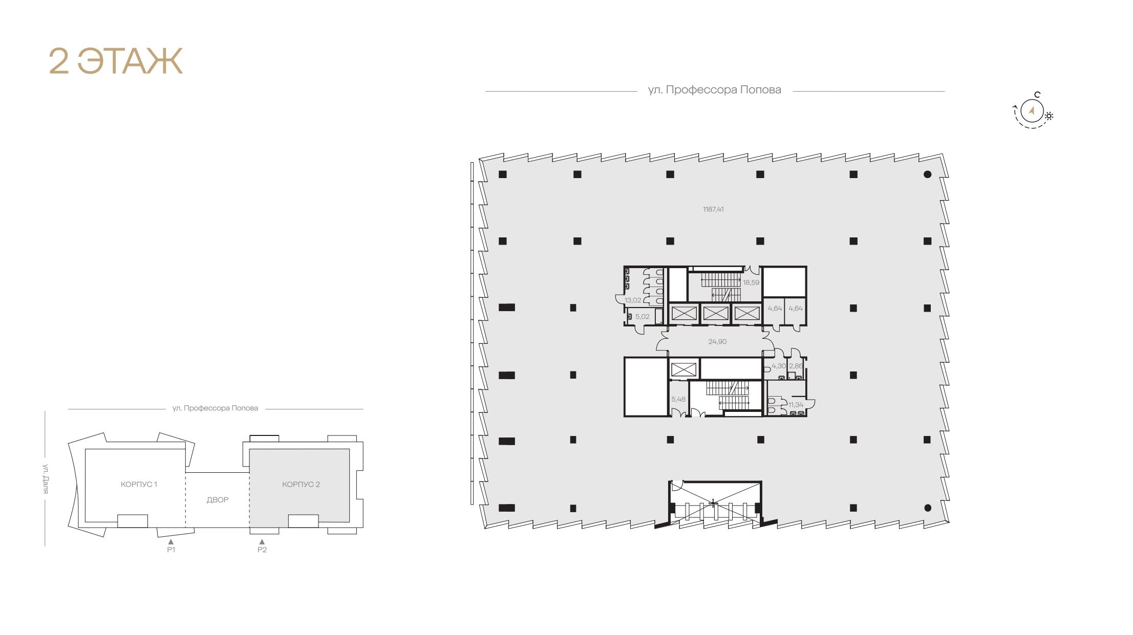
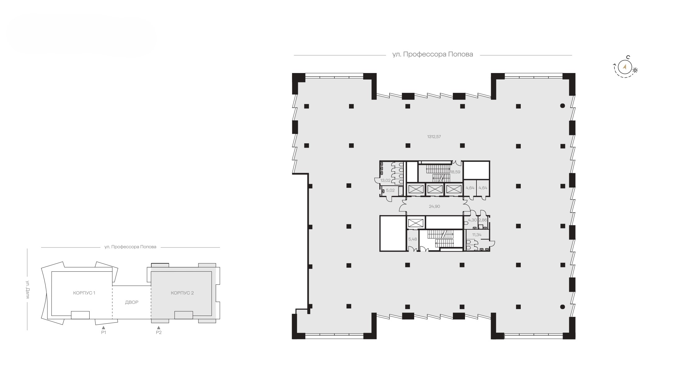
этажей
площадь террас
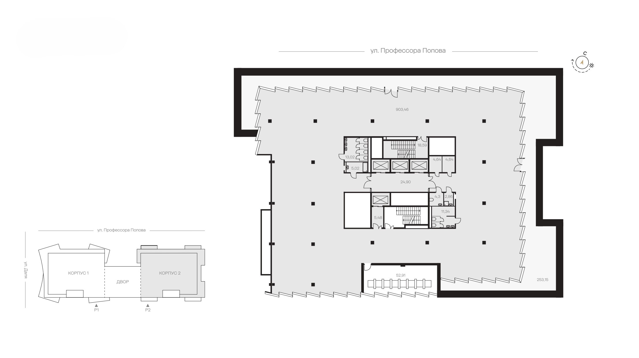
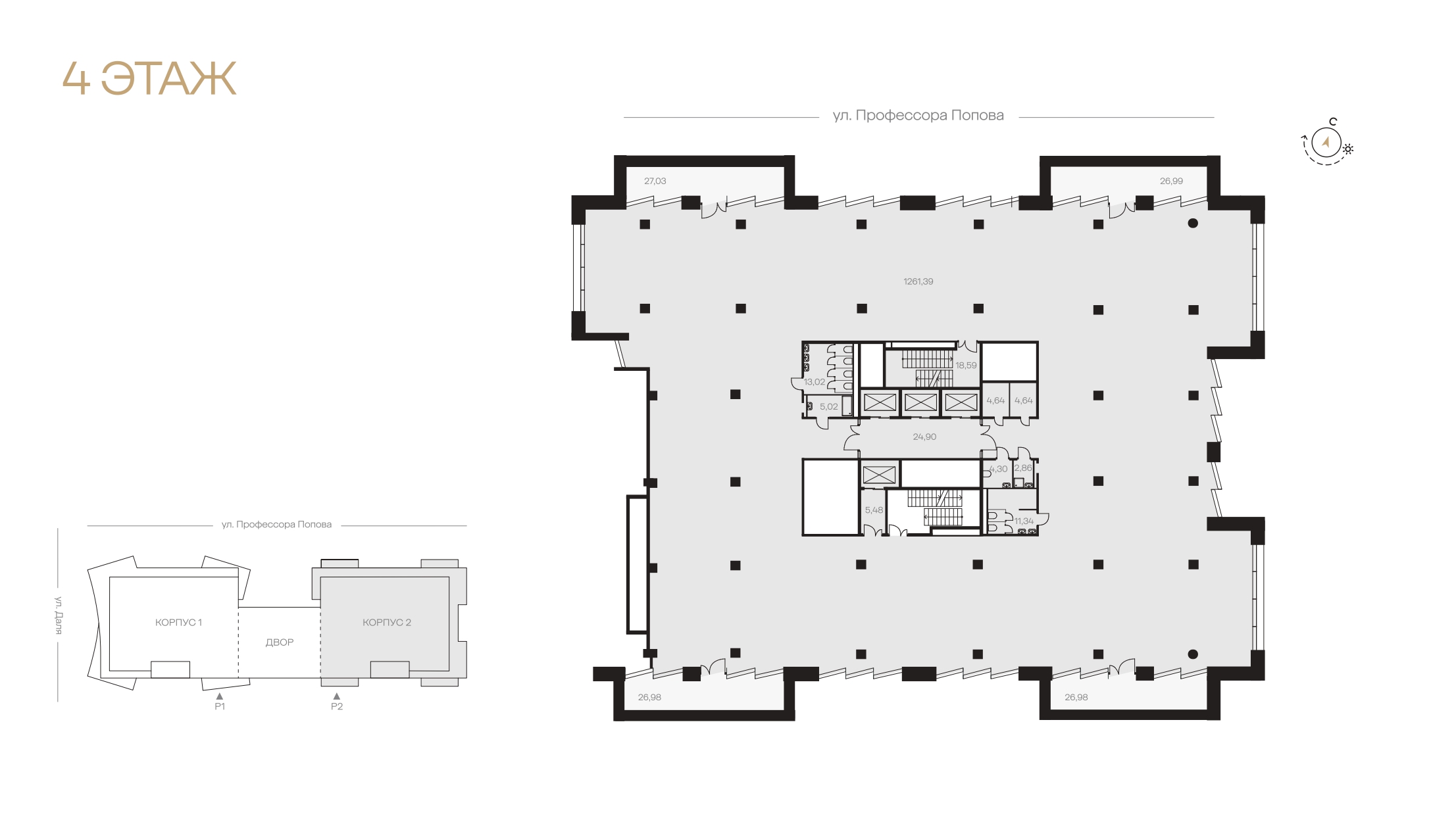
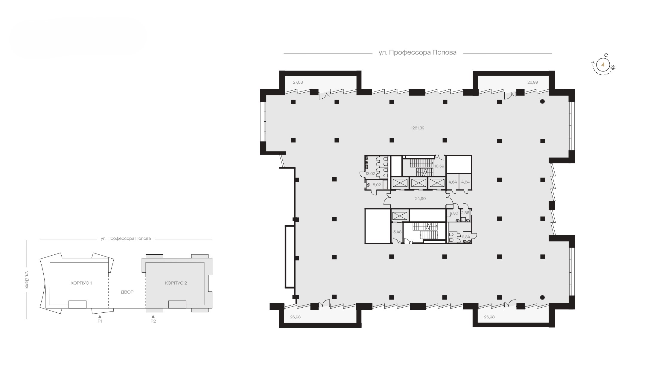
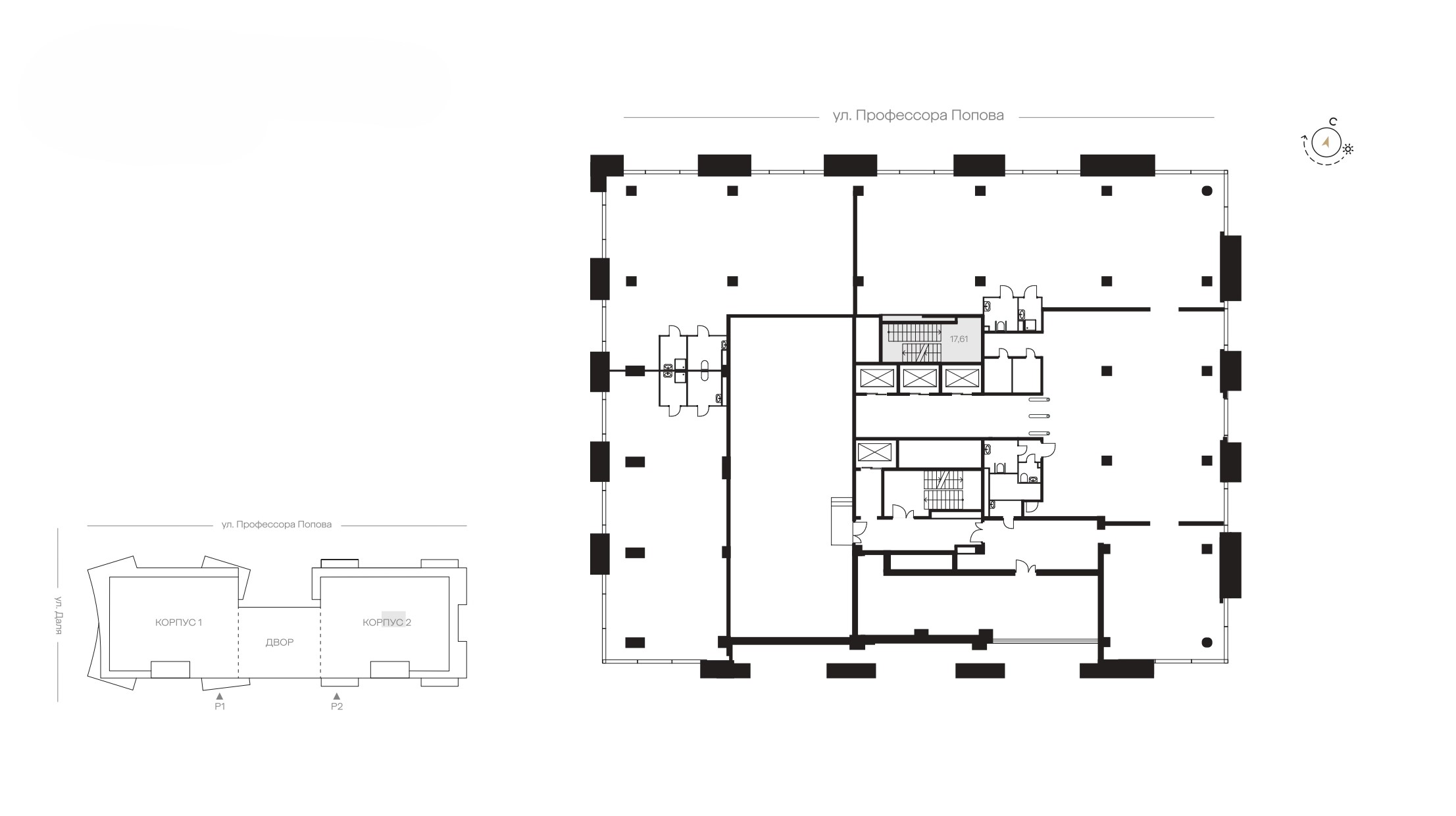
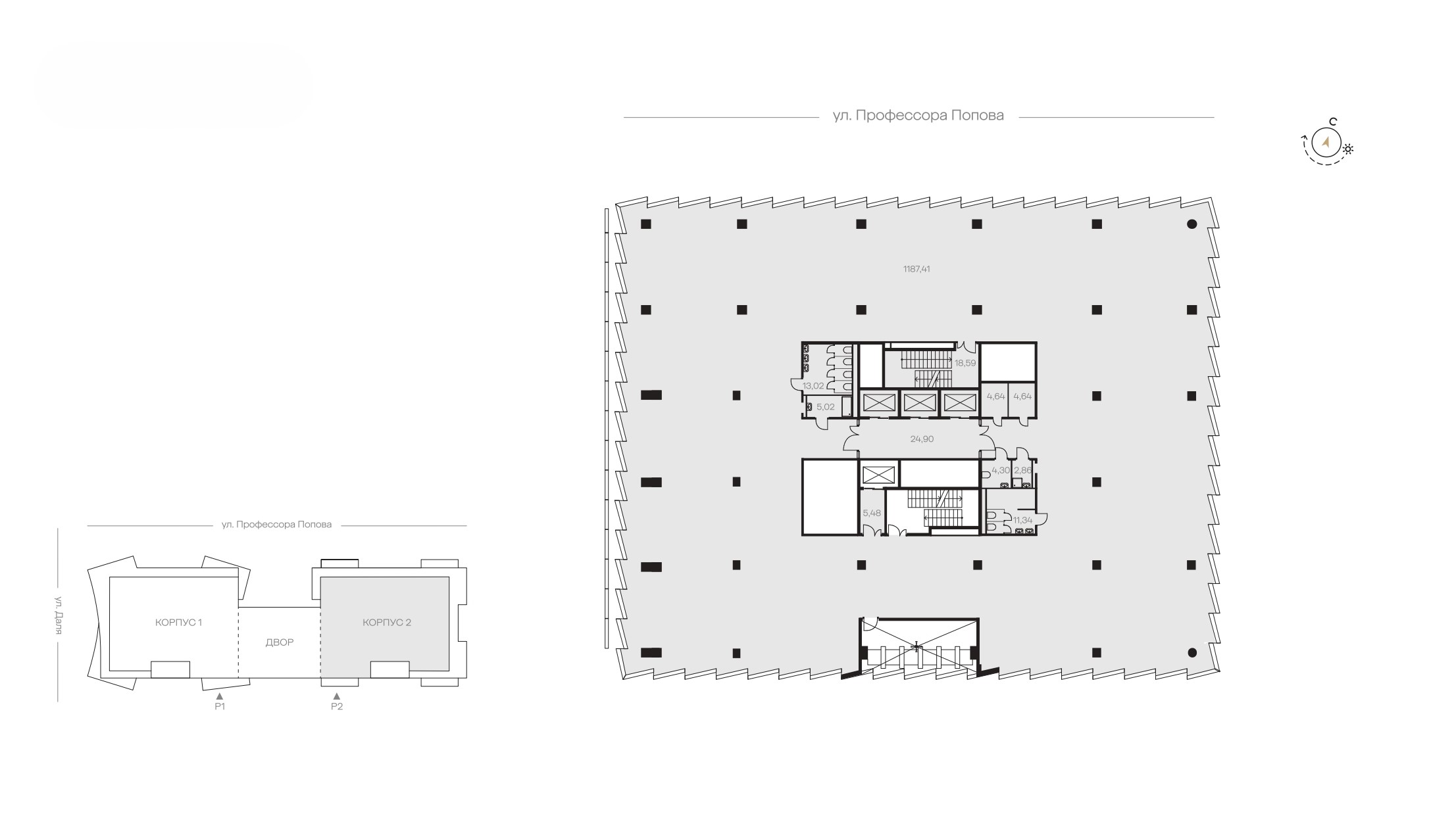
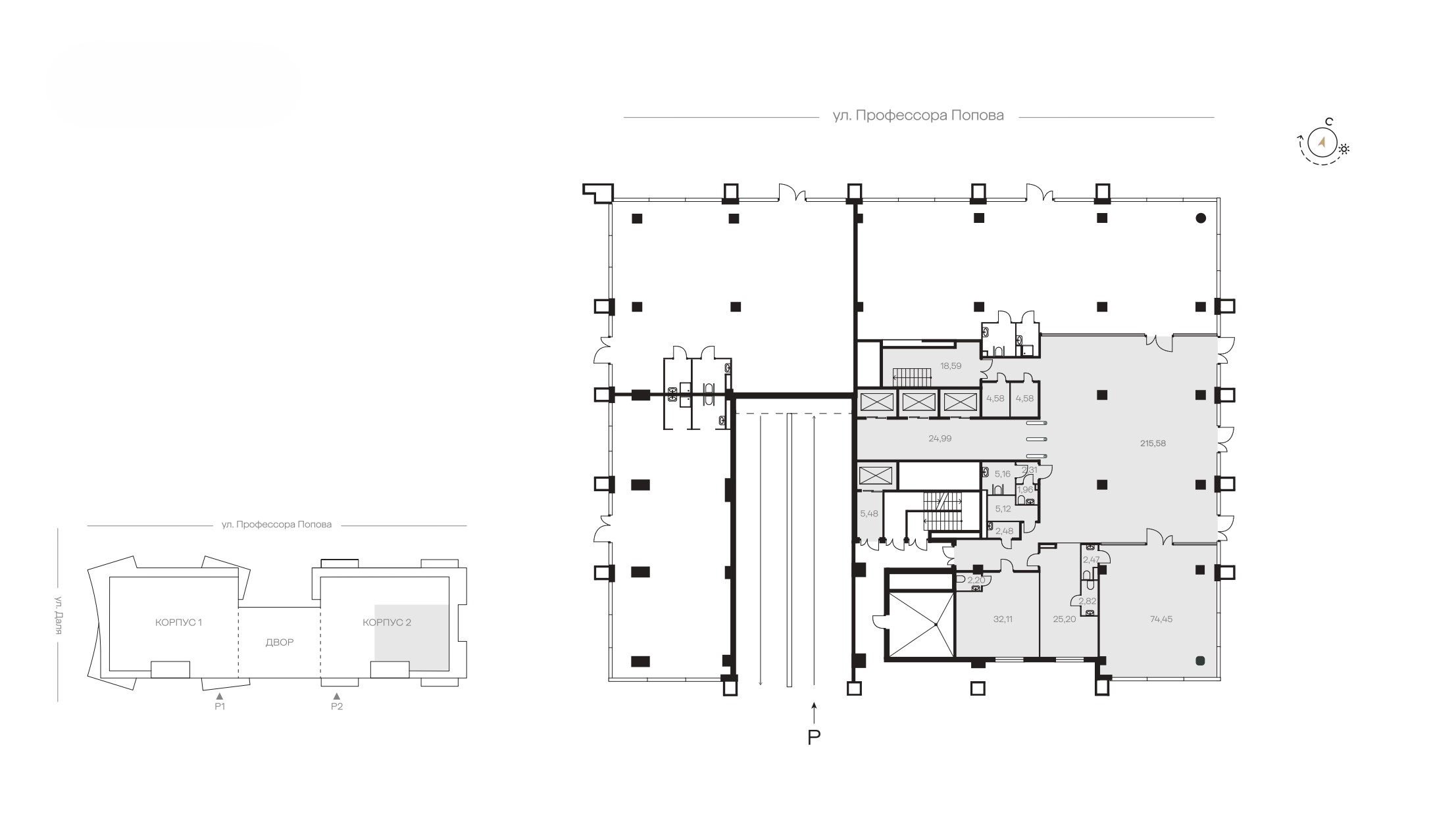
площадь
5,25 м
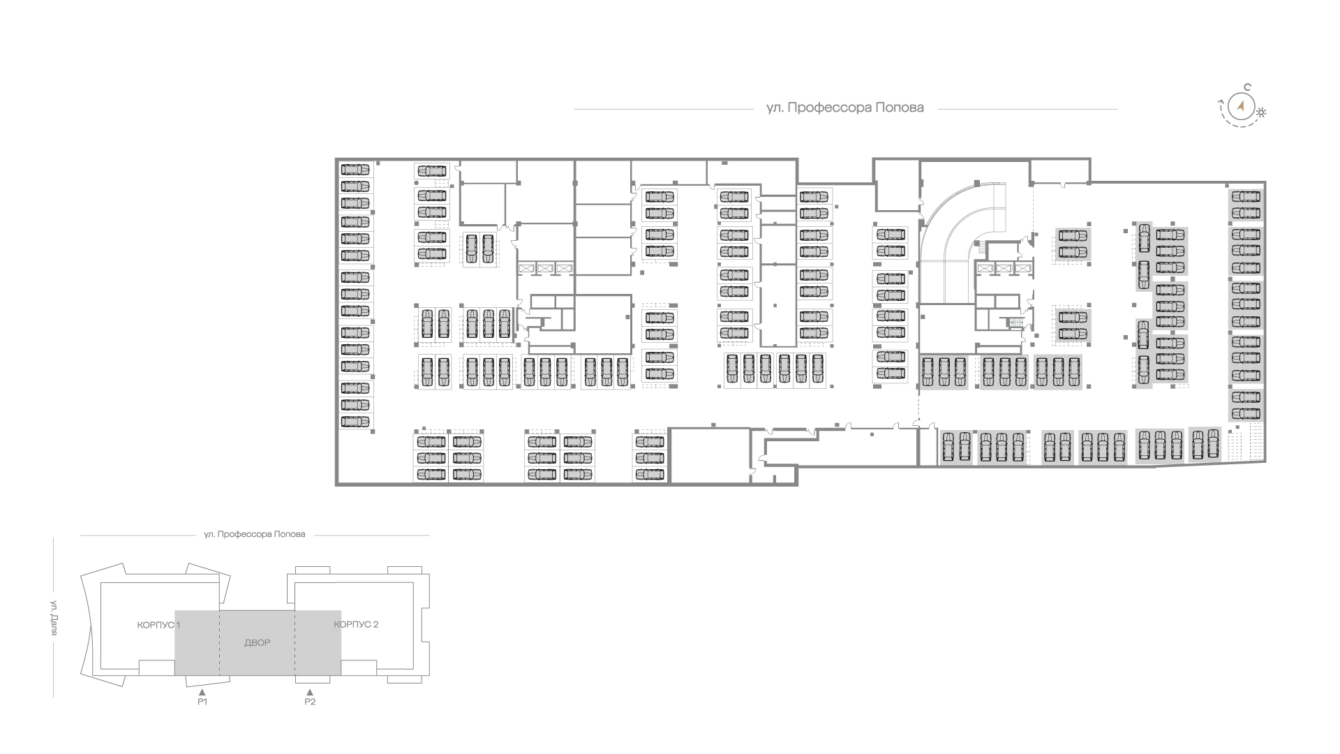
54 м/м
3,75 м
I кв. 2028
4
5
359 м2
5992 м²
корпус 2

КЛАССА А+

БИЗНЕС-ЦЕНТР







высота потолков
лобби
в подземном
паркинге
высота потолков
срок сдачи
лифта
этажей
площадь террас
площадь
5,25 м
54 м/м
3,75 м
I кв. 2028
4
5
359 м2
5992 м²
корпус 2

БИЗНЕС-ЦЕНТР КЛАССА А+

ПРЕМИАЛЬНАЯ ЛОКАЦИЯ

ул. Профессора Попова, 38
Вяземский сад
9 мин.
метро 
Чкаловская
Лопухинский 
сад
20 мин.
15 мин.
метро 
Петроградская
исторический

центр города
15 мин.
20 мин.

ПРЕМИАЛЬНАЯ ЛОКАЦИЯ

ул. Профессора
Попова, 38

Лопухинский сад
Вяземский сад
метро Чкаловская
метро Петроградская
исторический

центр города
15 мин.
9 мин.
15 мин.
15 мин.
20 мин.
УЛ. ПРОФЕССОРА ПОПОВА
УЛ. ДАЛЯ
AVENUE НА КАРПОВКЕ
ID PETROGRADSKAYA
УЛ. ПРОФЕССОРА ПОПОВА
УЛ. ДАЛЯ
AVENUE НА КАРПОВКЕ
ID PETROGRADSKAYA

КОНЦЕПЦИЯ

Для облицовки фасада выбран эксклюзивный 
высококлассный кирпич премиального сегмента. 
Этот материал подчёркивает статус объекта, 
создаёт неповторимую игру фактур и оттенков, 
которая трансформируется в зависимости 
от освещения и времени суток, и гарантирует 
долговечность конструкции и неизменность 
эстетических качеств на десятилетия вперёд.
Здание представляет собой гармоничный синтез 
изысканных классических элементов и 
ультрасовременных архитектурных приёмов. 
Благородные арки и элегантный курдонёр 
ненавязчиво отсылают к историческому наследию 
города, в то время как прогрессивные 
конструктивные решения демонстрируют 
современный взгляд на офисное пространство.

КОНЦЕПЦИЯ

Для облицовки фасада выбран эксклюзивный высококлассный кирпич премиального сегмента. Этот материал подчёркивает статус объекта, создаёт неповторимую игру фактур и оттенков, которая трансформируется в зависимости от освещения и времени суток, и гарантирует долговечность конструкции и неизменность  эстетических качеств на десятилетия вперёд.
Здание представляет собой гармоничный синтез изысканных классических элементов и ультрасовременных архитектурных приёмов. 
Благородные арки и элегантный курдонёр ненавязчиво отсылают к историческому наследию города, в то время как прогрессивные конструктивные решения демонстрируют 
современный взгляд на офисное пространство.

АРХИТЕКТУРА

АРХИТЕКТУРА

Мастера органично соединяют вековые петербургские
архитектурные традиции с передовыми технологиями, создавая
уникальный облик здания: гармоничное сочетание классических
элементов и современных решений формирует выразительный
силуэт, который станет новой визитной карточкой деловой
недвижимости Петроградского района.
Генеральным проектировщиком проекта бизнес‑центра выступает бюро VDC, а архитектурную концепцию разработали ведущие бюро — «СПИЧ» Сергея Чобана и «Евгений Герасимов и партнёры». Их знаковые проекты — «Невская ратуша» и «Санкт‑Петербург плаза» — уже вписаны в архитектурный код Петербурга, и новый бизнес-центр продолжит эту традицию.
Концептуальная
архитектура
Курдонёр
с общественным
пространством
Видовые террасы
на верхних
этажах
Премиальный
клинкерный
кирпич
Мастера органично соединяют вековые петербургские архитектурные традиции с передовыми технологиями, создавая 
уникальный облик здания: гармоничное сочетание классических элементов и современных решений формирует выразительный силуэт, который станет новой визитной карточкой деловой недвижимости Петроградского района.
Генеральным проектировщиком проекта бизнес‑центра выступает бюро VDC, а архитектурную концепцию разработали ведущие бюро — «СПИЧ» Сергея Чобана и «Евгений Герасимов и партнёры». Их знаковые проекты — «Невская ратуша» и «Санкт‑Петербург плаза» — уже вписаны в архитектурный код Петербурга, и новый бизнес-центр продолжит эту традицию.
Концептуальная
архитектура
Курдонёр 
с общественным
пространством
Видовые террасы
на верхних
этажах
Премиальный
клинкерный кирпич

ДЕВЕЛОПЕР

ДЕВЕЛОПЕР

Группа компаний «ТРЕСТ» основана в 1992 году. Являясь одним из крупнейших застройщиков Северо-Запада, компания ежегодно вводит в эксплуатацию около 150 тыс. м2 недвижимости. За 33 года работы сдано более 160 объектов общей площадью 4 млн м2, в том числе объектов социального и культурного значения в Санкт-Петербурге, Ленинградской области и Калининграде.


Сегодня Группа компаний «ТРЕСТ» — это собственные производственные мощности, генподрядные организации, и другие компании, обеспечивающие полный строительный цикл. Принципы компании — высокие стандарты качества строительства и сервиса, внимание к людям, культуре и архитектуре городов.
Символ надежного 
будущего с 1992 года
Группа компаний «ТРЕСТ» основана в 1992 году. Являясь одним из крупнейших застройщиков Северо-Запада, компания ежегодно вводит в эксплуатацию около 150 тыс. м2 недвижимости. За 33 года работы сдано более 160 объектов общей площадью 4 млн м2, в том числе объектов социального и культурного значения в Санкт-Петербурге, Ленинградской области и Калининграде.


Сегодня Группа компаний «ТРЕСТ» — это собственные производственные мощности, генподрядные организации, и другие компании, обеспечивающие полный строительный цикл. Принципы компании — высокие стандарты качества строительства и сервиса, внимание к людям, культуре и архитектуре городов.
Символ надежного 
будущего с 1992 года
Ваш персональный менеджер

razheva.is@trest-group.ru

+7 (812) 561 58 66 

Ирина Ражева

КОНТАКТЫ

Информация, представленная на данном сайте, носит информационный характер и не является публичной офертой, определяемой положениями статьи 437 ГК РФ. Любое использование текстов, изображений, файлов, планировок и видео, расположенных на сайте ..................trest-group.ru, не допускается без письменного разрешения ООО «СТН». Характеристики объектов, графические изображения и иллюстрации,  представленные на данном сайте в виде текстов и изображений, являются проектными и могут быть изменены в порядке, предусмотренном действующим законодательством. В соответствии с Федеральным законом от 30.12.2004 № 214-ФЗ, полная информация о застройщике и проектах строительства размещена на сайте: наш.дом.рф
© 2025 Группа компаний «ТРЕСТ» 
Ваш персональный менеджер

razheva.is@trest-group.ru

+7 (812) 561 58 66 

Ирина Ражева

КОНТАКТЫ

Информация, представленная на данном сайте, носит информационный характер и не является публичной офертой, определяемой положениями статьи 437 ГК РФ. Любое использование текстов, изображений, файлов, планировок и видео, расположенных на сайте ..................trest-group.ru, не допускается без письменного разрешения ООО «СТН». Характеристики объектов, графические изображения и иллюстрации,  представленные на данном сайте в виде текстов и изображений, являются проектными и могут быть изменены в порядке, предусмотренном действующим законодательством. В соответствии с Федеральным законом от 30.12.2004 № 214-ФЗ, полная информация о застройщике и проектах строительства размещена на сайте: наш.дом.рф
© 2025 Группа компаний «ТРЕСТ»